Copyright 2009-2024

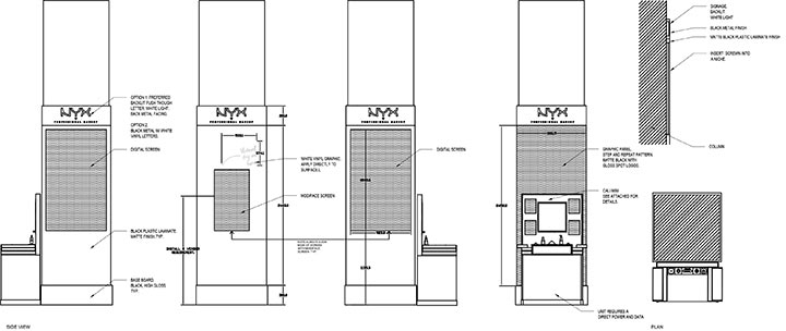
NYX Professional Makeup
Shop-in-Shop @ Golden Apple Metropolis

Moscow, Russia
Lead Designer . Visual Merchandising